إرسال استفسار لنا
ميزات التصميم:
1 、 جسم من حديد الدكتايل وغطاء محرك للقوة العالية ومقاومة الصدمات. جسم الصمام وغطاء الإيبوكسي المرتبط بونيه فيوجن من أجل حماية طويلة الأمد من التآكل. مباشرة من خلال التجويف الكامل لتجنب مصائد الحطام ، ومقاومة التدفق الصغيرة.
2 ، إسفين من حديد الدكتايل داخل وخارج المطاط بالكامل مع EPDM أو NBR المفلكن ، ومناسب لمياه الشرب.
3 ، حشية بونيه مطاطية لإطالة العمر وحماية مسامير غطاء المحرك ، ومشابك معزولة للحماية من التآكل.
4 、 ساق من الفولاذ المقاوم للصدأ مع خيط متداول لقوة عالية ومقاومة للتآكل **.
5 ، مرفق الختم الخلفي للسماح باستبدال الأختام تحت ضغط التشغيل الكامل.
6 、 غسالة دفع سفلية لتقليل الاحتكاك.
7 、 صب غدة حديد الدكتايل السميكة ، حلقات O قابلة للاستبدال.
8 ، واقي من الغبار لمنع الشوائب من دخول نظام ختم الساق.
9 ، جلبة نحاسية للمحاذاة ، وتشغيل عزم دوران منخفض.
10 ، الجوز الجذعية مجمعة لأسفل.
11 ، يتم تزويد الصمام بعجلة يدوية أو عمود مكشوف بغطاء مربع ؛ عزم دوران صغير ، فتح وإغلاق سهل.
مجال التطبيق :
نطاق الحجم: DN40 و DN600
أقصى درجة حرارة: 80 درجة مئوية
ضغط التشغيل المسموح به: PN10 、 PN16 、 PN25
صمام البوابة للاستخدام في الري وخدمات المرافق العامة وأنظمة التدفئة والتهوية وتكييف الهواء وأنظمة المياه
سمات:
الجذع والنير الخارجي (OS&Y)
ختم الجذعية مع حلقة O
غطاء محرك الترباس ، التجويف الكامل
إسفين مطاطي مغلف ، صامولة إسفين نحاسية.
إيبوكسي مدمج من الداخل والخارج ، أزرق RAL 5017 200 ميكرون
ضغط العمل 250 رطل لكل بوصة مربعة / 17.2 بار بارد غير مقاوم للصدمات
المواصفات الفنية:
تصميم الصمام وفقًا لـ AWWA C515 、 AWWA C509
أبعاد وجهًا لوجه وفقًا لمعيار ANSI B16.10
اختبار هيدروليكي وفقًا لـ AWWA C515 AWWA C509 、 ISO5208
حفر شفة قياسي إلى ANSI B16.1 、 ANSI B16.42

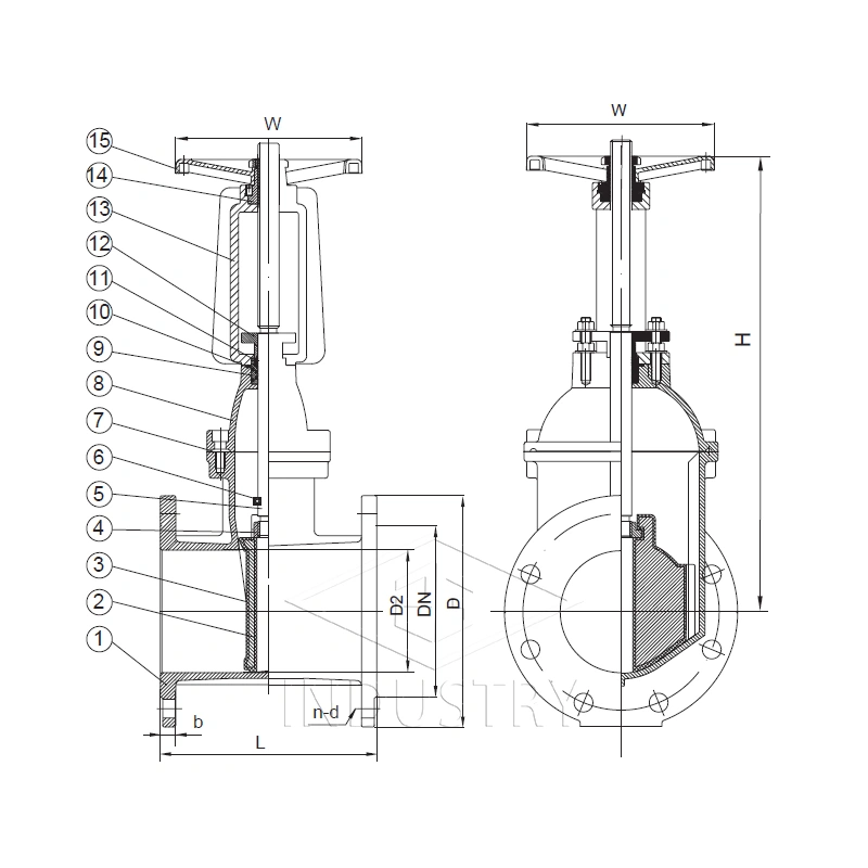
قائمة مواد
| رقم الصنف. | جزء اسم | تخصيص |
| 1 | الجسم | حديد الدكتايل ASTM A536 65-45-12 |
| 2 | وتد | حديد الدكتايل ASTM A536 65-45-12 |
| 3 | طلاء الوتد | E EPDM ASTM D2000 |
| 4 | إسفين البندق | سبائك النحاس |
| 5 | إيقاف | الفولاذ المقاوم للصدأ X20 Cr13 |
| 6 | يا الدائري الخلفي الختم | EPDM ASTM D2000 |
| 7 | بونيه حشية | EPDM ASTM D2000 |
| 8 | غطاء محرك السيارة | حديد الدكتايل ASTM A536 65-45-12 |
| 9 | التعبئة كورك | سبائك النحاس |
| 10 | يا الدائري | EPDM ASTM D2000 |
| 11 | وقوف السيارات يا الدائري | EPDM ASTM D2000 |
| 12 | شفة الغدة | حديد الدكتايل ASTM A536 65-45-12 |
| 13 | نير | حديد الدكتايل ASTM A536 65-45-12 |
| 14 | البندق الجذعية | سبائك النحاس |
| 15 | عقارب | حديد الدكتايل ASTM A536 65-45-12 |