inviaci una richiesta
Caratteristiche del progetto:
1、 Corpo e cofano in ferro duttile per un'elevata resistenza e resistenza agli urti. Rivestimento epossidico legato a fusione di corpo valvola e cappello per una protezione dalla corrosione di lunga durata. Dritto attraverso il passaggio totale per evitare trappole di detriti, piccola resistenza al flusso.
2、 Cuneo in ferro duttile all'interno e all'esterno completamente gommato con EPDM vulcanizzato o NBR, adatto per acqua potabile.
3、 Guarnizione del cofano in gomma per la longevità e la protezione dei bulloni del cofano, elementi di fissaggio isolati per la protezione dalla corrosione.
Stelo in acciaio inossidabile da 4、 con filettatura volvente per un'elevata robustezza e resistenza alla corrosione**.
5、 Dispositivo di tenuta posteriore per consentire la sostituzione delle guarnizioni a piena pressione di esercizio.
6、 Rondella reggispinta inferiore per ridurre l'attrito.
7、 Ghiandola di ferro duttile colata a parete spessa, O-ring sostituibili.
8、 Parapolvere per impedire l'ingresso di impurità nel sistema di tenuta dello stelo.
9、 Boccola in ottone per allineamento, funzionamento a coppia ridotta.
10、 Dado dello stelo montato verso il basso.
11、La valvola è fornita con volantino o albero nudo con calotta quadrata; Piccola coppia di manovra, facile apertura e chiusura.
Campo di applicazione:
Gamma di dimensioni: DN40 e DN600
Temperatura massima: 80˚C
Pressione di esercizio consentita: PN10, PN16, PN25,
Valvola a saracinesca per l'uso in irrigazione, servizi di utilità generale, HVAC e sistemi idrici
Caratteristiche:
Stelo esterno e giogo (OS&Y)
Guarnizione dello stelo con O-ring
Cofano a bullone, passaggio totale
Cuneo incapsulato in gomma, dado a cuneo in ottone.
Rivestimento epossidico incollato fusione all'interno e all'esterno, blu RAL 5017 200 micron di spessore
Pressione di esercizio da -1 a +16 Bar e temperatura di esercizio da -10 a +80 ºC
Specifica tecnica:
Design della valvola secondo EN 1171、BS5163、EN 1074-1 e 2
Dimensioni faccia a faccia secondo BS5163、EN 551-1 Serie 13
Prova idraulica secondo EN 12266、ISO5208
Foratura flangia standard secondo EN 1092-2、ISO 7005-2

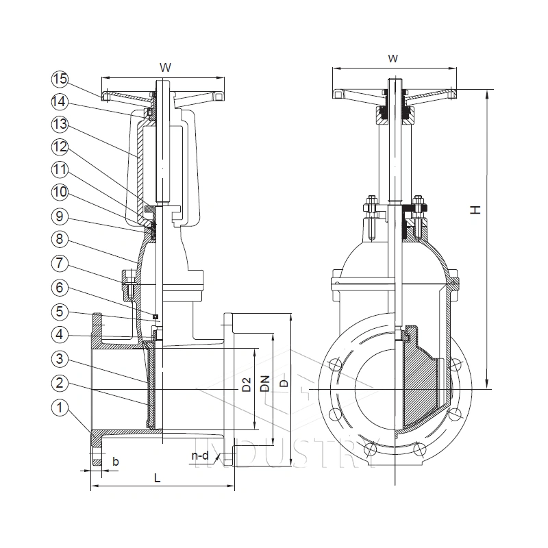
LISTA MATERIALI
| Oggetto numero. | Nome della parte | Specifiche |
| 1 | Corpo | Ghisa duttile EN- GJS- 500- 7 |
| 2 | Cuneo | Ghisa duttile EN- GJS- 500- 7 |
| 3 | Rivestimento a cuneo | NBR/EPDM EN 681-1 |
| 4 | Dado a cuneo | Lega di rame |
| 5 | Stelo | Acciaio inossidabile X20 Cr13 |
| 6 | O Ring posteriore di tenuta | EPDM/NBR |
| 7 | Guarnizione del cofano | NBR/EPDM EN 681-1 |
| 8 | Cofano | Ghisa duttile EN- GJS- 500- 7 |
| 9 | Imballaggio di sughero | Lega di rame |
| 10 | O-ring | EPDM/NBR |
| 11 | O-ring di parcheggio | EPDM/NBR |
| 12 | Flangia della ghiandola | Ghisa duttile EN- GJS- 500- 7 |
| 13 | Giogo | Ghisa duttile EN- GJS- 500- 7 |
| 14 | Dado del gambo | Lega di rame |
| 15 | Volantino | Ghisa duttile EN- GJS- 500- 7 |